Modern Mumbai flat bathroom Vastu-compliant with natural lighting, health and harmony.

Bathroom & Toilet Vastu: Mistakes and Easy Remedies for Mumbai Flats

Urban living in Mumbai often means limited space and modern layouts. Yet, even in compact apartments, applying Vastu principles can restore positive energy and harmony. Among key areas, bathrooms and toilets hold immense importance because they govern water elements and influence the flow of health, wealth, and emotional balance.

Why Bathroom and Toilet Vastu Matters

Bathrooms and toilets are often overlooked while designing flats. However, these spaces control the outflow of waste and water—both symbolic of removing negativity and emotional burden. When wrongly placed or oriented, they may cause health issues, recurring obstacles, and financial concerns. Correct Vastu placement ensures that these spaces remove negativity without disturbing the house’s natural energy grid.

A well-aligned toilet and bathroom can:

  • Maintain consistent energy flow in the apartment.
  • Support good digestion, emotional health, and mental clarity.
  • Prevent financial leaks and unnecessary stress.
  • Balance the water element when paired with earth and fire energies correctly.

Common Bathroom and Toilet Vastu Mistakes in Flats

Mumbai’s high-rise apartments often miss ideal Vastu layouts due to structural constraints. However, certain common mistakes can be identified and corrected without major renovation.

1. Wrong Location

Toilets placed in the northeast or center of the house tend to attract negative vibrations. The northeast (Ishan corner) is sacred and should ideally remain clean, open, and light.

2. Incorrect Slope Direction

Modern builders often ignore natural slope directions. Ideally, the bathroom floor should slope towards the north or east to ensure smooth water drainage. A southwestern slope can cause stagnation in both energy and practical terms.

3. Improper Toilet Seat Placement

The toilet seat should face either north-south direction. Facing east-west while using the toilet disrupts electromagnetic energy alignment, affecting overall harmony.

4. Attached Bathrooms in Wrong Zones

An attached toilet in the northeast, southeast, or center can disturb health and sleep. These are frequent in apartments due to space limitations.

5. Overuse of Black or Red Shades

These colors aggravate fire or tamas energy in a water-dominated area. Bathrooms or toilets using dark paints or flooring should be corrected with lighter or neutral tones.

6. Leaking Taps or Damp Walls

Dripping water represents continuous energy loss. It may manifest as unplanned expenses or recurring health problems.

Read More 👉 https://vastusage.in/living-room-vastu-mumbai/

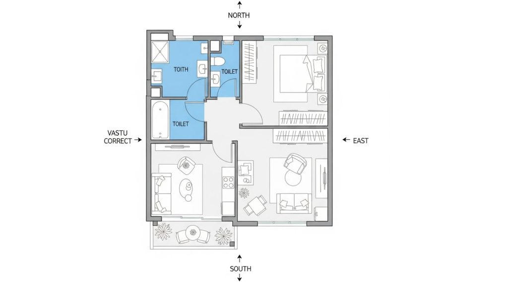
Ideal Directions for Bathroom and Toilet in Vastu

When planning or evaluating a flat—whether for purchase or rental in Mumbai—understand the directional significance in Toilet and Bathroom Vastu.

  • Toilet location: Best in the northwest (Vayavya) or sometimes the west or south direction.
  • Bathroom (without toilet): Can be positioned north or east for health benefits and purity.
  • Slope direction: Towards the east or north to align with natural cosmic flow.
  • Geyser/water heater: Southeast corner of the bathroom.
  • Washbasin or shower: North, east, or northeast side.
  • Mirror direction: Always on the north or east wall.
  • Toilet seat: Facing north or south while sitting.

Properly following these guidelines ensures health and prosperity while maintaining modern comfort in your Mumbai flat.

Bathroom Vastu mistakes and easy correction tips for Mumbai apartments.

Vastu Remedies for Bathroom & Toilet Mistakes

Not every Mumbai apartment allows full layout changes, especially in ready possession or rental flats. In such situations, simple and effective Vastu remedies can balance disturbed energies.

1. For Toilets in Northeast Corner:

Place a Vastu copper wire grid or pyramid on the bathroom ceiling or external wall to neutralize negativity. Keeping a light yellow bulb or wall shade also helps reduce imbalance.

2. For Attached Bathroom in Bedroom:

Always keep the bathroom door closed and ensure exhaust fans are functional to expel negative air. A small bowl of sea salt or rock salt can absorb heaviness and must be changed weekly.

3. Color Correction:

Use pastel shades like sky blue, light grey, or off-white. Avoid black or deep red tiles in toilets.

4. Water Leakage Issues:

Fix leaks immediately and place a small green plant outside the toilet door (north zone preferred).

5. Mirror Correction:

Keep mirrors clean and bright; never place them opposite the toilet seat.

6. Air and Light Balance:

Bathrooms should have proper ventilation and natural light to avoid energy stagnation. If no window exists, use Himalayan salt lamps or aromatic diffusers.

Looking to fix Bathroom or Toilet Vastu errors in your Mumbai flat?

Book your personalized Vastu consultation today at vastusage.in and discover simple, budget-friendly remedies for balanced living.

Practical Vastu Tips for Mumbai Flats in 2025

For most flat buyers or tenants across Bandra, Andheri, Kandivali, Borivali, and South Mumbai, implementing 100% traditional Vastu may not be feasible due to fixed plumbing and compact layouts. However, partial alignment with corrections and color balancing can yield excellent results.

  • Choose a flat with the bathroom positioned in the northwest or west side of the home.
  • Avoid buying apartments with toilets in the northeast corner.
  • In rental flats, always assess bathroom direction before finalizing the property.
  • Cleanse energy weekly using sea salt or camphor cubes.
  • Keep all toilet doors closed after use and ensure continuous ventilation.
  • Consult a certified Vastu expert in Mumbai before structural changes.

Vastu Consultation in Mumbai for Modern Homes

For new-age apartments and compact spaces, practical Vastu guidance matters as much as traditional rules. A professional Vastu consultant can analyze your flat’s layout using a directional compass and energy mapping to suggest personalized solutions. Whether you live in a 1BHK in Andheri or a luxury flat in Bandra, expert consultation ensures harmony without disruption to modern aesthetics.

Professional consultation also helps in:

  • Evaluating under-construction or resale flats for Vastu alignment.
  • Suggesting placement remedies for bathrooms, kitchens, and bedrooms.
  • Balancing five elements without demolition.
  • Offering color therapy, mirror placement, and light corrections.

Why Choose Vastusage.in for Bathroom & Toilet Vastu Consultation

We connect you to experienced Vastu experts in Mumbai, specializing in residential, apartment, and high-rise consultations. From Bandra and Andheri to Borivali, Kandivali, and South Mumbai, our balanced approach blends ancient Vastu science with modern practicality. If you are buying, renting, or redesigning a flat, our experts can guide you to achieve positivity, health, and prosperity aligned with space energy.

Frequently Asked Question

Q1: Can a bathroom be in the northeast corner?

The northeast is sacred (Ishan) and should remain open and pure. You can apply neutralizing remedies if placement is unavoidable.

Q2: Is it okay to have an attached toilet in the master bedroom?

Yes, if located towards the west or northwest of the room and properly ventilated. Keep the door closed and use salt remedies to neutralize negative energy.

Q3: What colors are best for bathrooms as per Vastu?

Light shades such as white, sky blue, and cream promote clarity and hygiene.

Q4: I live in a rented flat with wrong toilet placement. Can Vastu still help?

With color correction, pyramids, and proper ventilation, most imbalances can be rectified without changing structure.

Q5: How can I check if my flat’s bathroom follows Vastu?

You can book a layout evaluation with a Vastu expert from Vastusage, who will analyze directions and suggest customized solutions.

Similar Posts

Leave a Reply

Your email address will not be published. Required fields are marked *